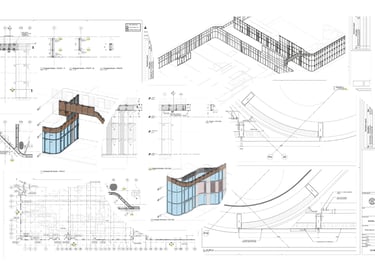
Glazing Shop /Fab Drawings
ETERNAL VIEWS brings extensive expertise in glazing shop drawings and fabrication drawings using industry-leading software such as Autodesk BIM 360, Revit, Navisworks, Inventor, AutoCAD with compatibility for clients who prefer traditional drafting methods.
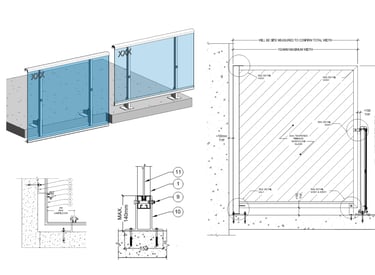
Our Shop Drawings include:
Specifications
Material Schedule
Anchor Schedule
Floor Plans
Elevations
Detailed Sections & Connections
Projects












Videos
Eternal Views Inc.
